Ons kantoor is lid van Baerz & Co Luxury Homes; een internationaal platform dat exclusieve woningmakelaars met elkaar verbindt. Neem contact op met ons secretariaat voor meer informatie over het landelijke aanbod, waarvan u hieronder een selectie kunt bekijken.

Grachtenpand for sale in AMSTERDAM

AMSTERDAM Blauwburgwal 18 H - 1015 AT The Netherlands


Sander Bovenkerk profile image
Sander Bovenkerk
Real Estate Agent
+31 6 55 74 61 72
info@heerenmakelaars.nl

Heeren Makelaars
Stadionweg 75
1077 SE Amsterdam
NETHERLANDS
+31 0204702255
www.heerenmakelaars.nl
info@heerenmakelaars.nl

Living area
239m2
Plot size
90m2
Bedrooms
3

Description

Blauwburgwal 18, 1015 AT Amsterdam

In one of the most beautiful and tranquil locations in the heart of Amsterdam lies this exceptionally stylish canal house of approx. 239m², spread across five floors and offering a rare combination of charm, comfort, and functionality. With four spacious bedrooms, a multifunctional commercial space on the ground floor, and a spectacular master suite with a private wellness bathroom, this property provides a unique living experience. Renovated to the highest standards in 2020, it features historic details, a Japanese minimalist aesthetic, and a thoughtful layout — ideal for those who want to live centrally without compromising on peace, luxury, and space.

Accessibility

This beautiful home is located in a prime location in the city center of Amsterdam, between the iconic Herengracht and the Singel canals. This part of the canal belt is notably quiet and charming, with relatively few office buildings and minimal traffic. As such, you can enjoy true city living with an unusually serene and spacious atmosphere. For daily shopping and boutique browsing, the lively Haarlemmerstraat and Haarlemmerdijk are just around the corner — known for their mix of supermarkets, artisan specialty shops, trendy boutiques, and unique concept stores. Food lovers will be delighted with the abundance of quality restaurants, cozy cafés, artisanal coffee bars, and welcoming terraces that give the neighborhood its vibrant character. The popular Westerpark is within walking distance, offering space for joggers, walkers, picnickers, and culture enthusiasts, with frequent events, markets, and cultural activities. Families are well served, too, with several highly rated primary schools, childcare centers, and playgrounds nearby, making this neighborhood well-suited for young families. Accessibility is excellent. Amsterdam Central Station is just a five-minute walk away and connects to the entire public transport network, including metros, trams, trains, buses, and ferries to all parts of the city and beyond. By car, the A10 ring road can be easily reached via the Haarlemmerweg, ensuring quick access to other parts of the city and region.

Layout

Ground floor

The entrance provides access to both the residence and the multifunctional commercial space on the ground floor. This space is finished with great attention to detail, exuding character through wooden elements, exposed ceiling beams, and high-quality materials. Large double doors at the front can be fully opened, creating an inviting look and allowing for ample natural light. Inside, the space is practical yet stylishly arranged. A compact but luxuriously finished kitchenette, a neat toilet, and a separate laundry and technical room complete this floor. A large skylight at the rear brings in abundant daylight, adding to the open and airy feel. Rear access to a private outdoor space is available, as well as a second entrance directly from the street — providing flexibility for use as a studio, home office, or practice space.

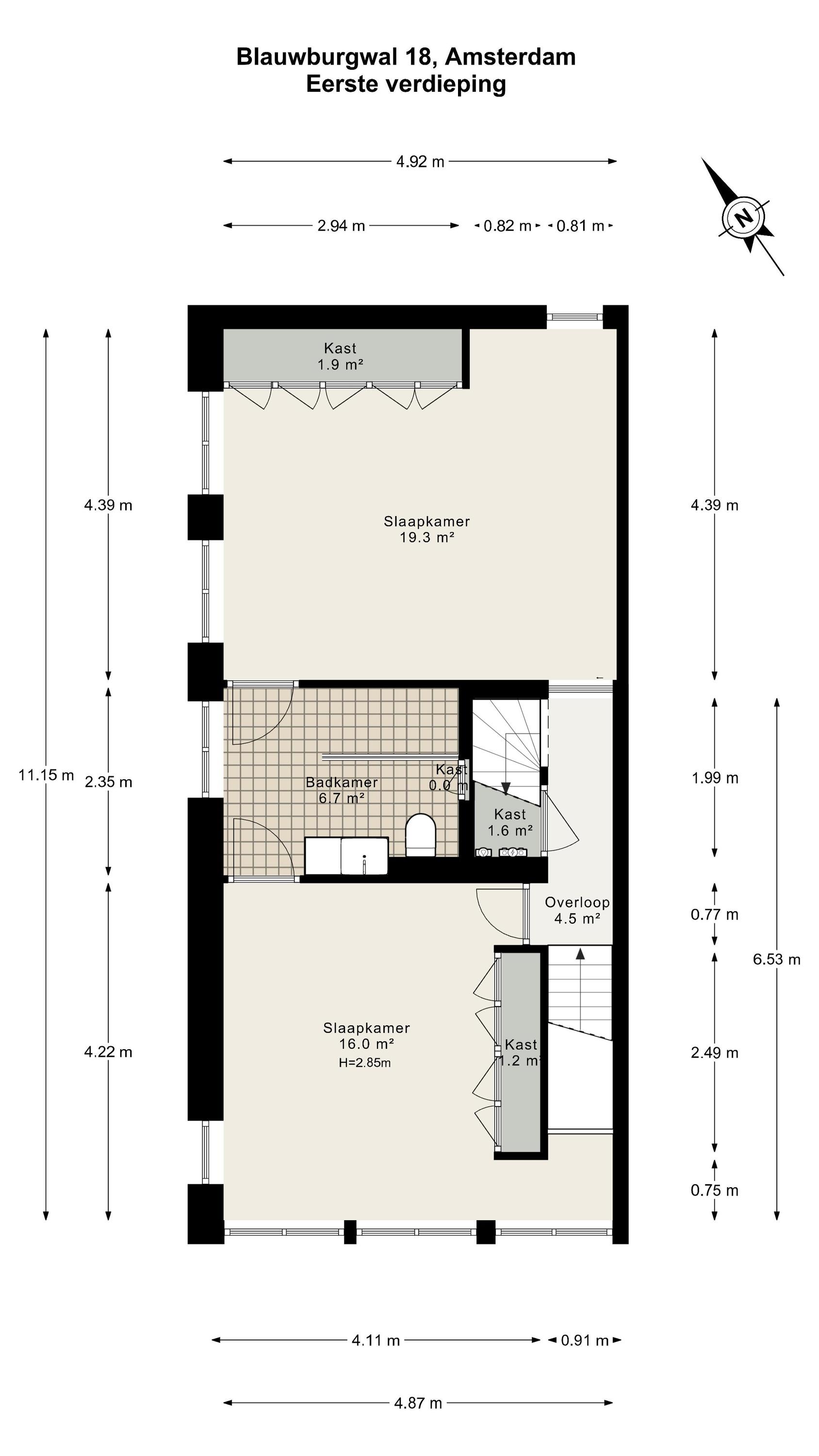
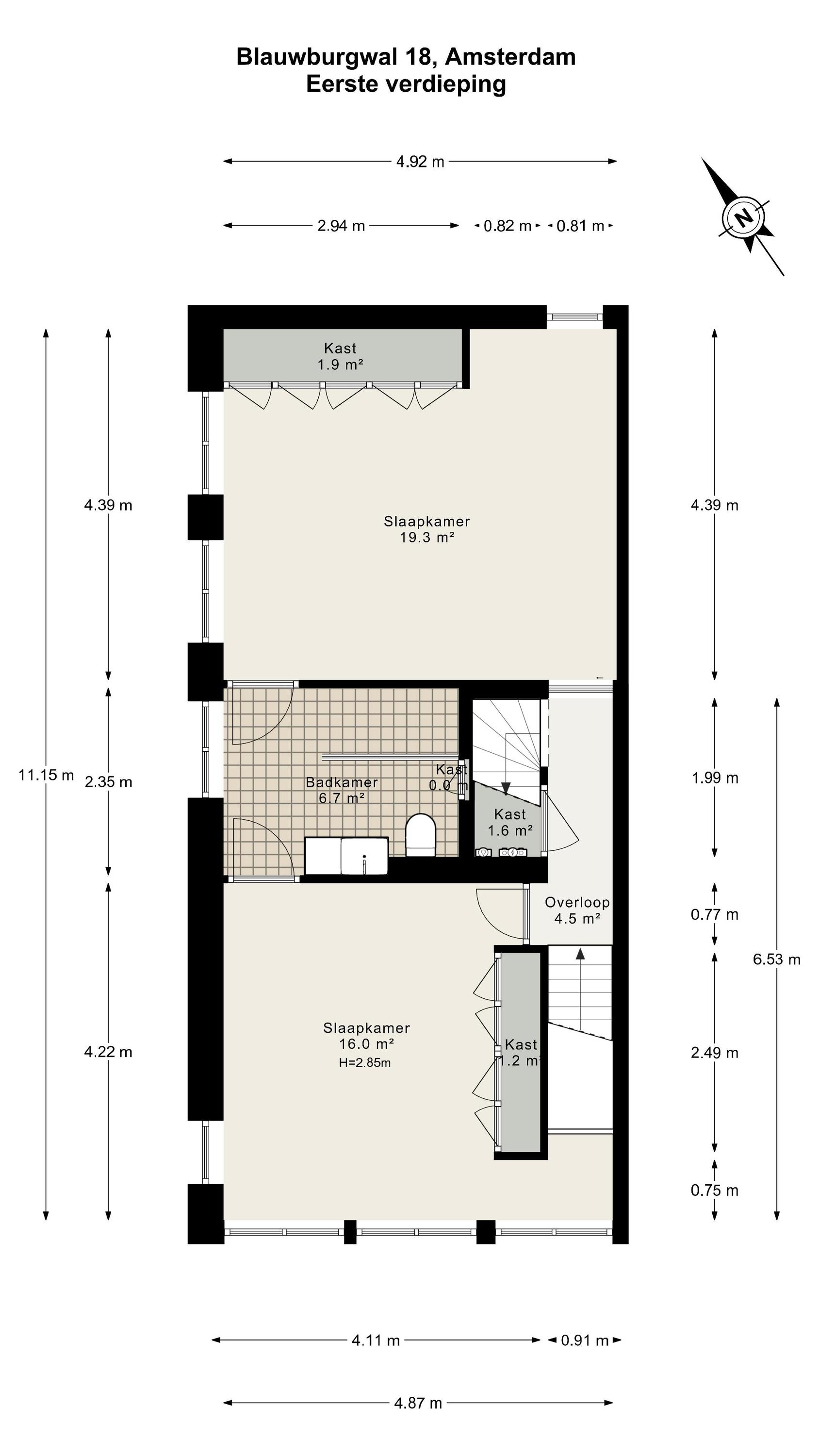
First floor

A tidy landing with built-in storage leads to two bedrooms. This floor features a beautiful wooden floor and premium finishes. At the front is a spacious bedroom with a custom-made built-in wardrobe that seamlessly integrates into the design. Large windows flood the space with natural light and offer a stunning view of the canal and historic facades. The second bedroom at the rear also includes built-in wardrobes. Centrally located on this floor is the modern bathroom, complete with a walk-in shower, sleek vanity, and stylish toilet — all finished to a high and timeless standard. Elegant steel-framed doors close off the bedrooms, combining functionality and design in harmony with the home’s aesthetic.

Second floor

This floor is entirely dedicated to living and entertaining. At the rear is the modern kitchen — the heart of the home. It includes high-end built-in appliances: fridge, freezer, combi oven and microwave, Quooker tap, and a sleek induction cooktop with integrated extractor fan. Ample storage keeps the space minimalist and tidy. The centrally placed island includes a bar area for informal dining. At the front is the living area, where large windows offer a sweeping view over the canal. The combination of natural light, warm wooden floors, and subtle finishes create a calm, inviting ambiance. French doors open to a hallway with a separate toilet, and a staircase leads to the third floor.

Third floor

This upper floor is dedicated to a luxurious master suite — a private sanctuary of peace, space, and comfort. A central walk-in closet features custom cabinetry that is both functional and stylish. At the front is the cozy bedroom, where original ceiling beams and impressive ceiling height immediately draw the eye. Tall windows extending into the gable enhance the sense of openness and bring in wonderful natural light. Built-in wardrobes contribute to the clean, elegant look. At the rear lies the spectacular bathroom — a true wellness retreat at home. Here you’ll find a striking freestanding Agape Spoon Woodline bathtub, a double vanity with stylish cabinetry, a spacious walk-in shower, a steam cabin, and a built-in recliner for ultimate relaxation. The space is finished with warm materials and thoughtful design elements, including integrated lighting for a hotel-like atmosphere. Beautiful wooden sliding panels provide both shading and aesthetic appeal, offering privacy without blocking light. The toilet is separate from the bathroom.

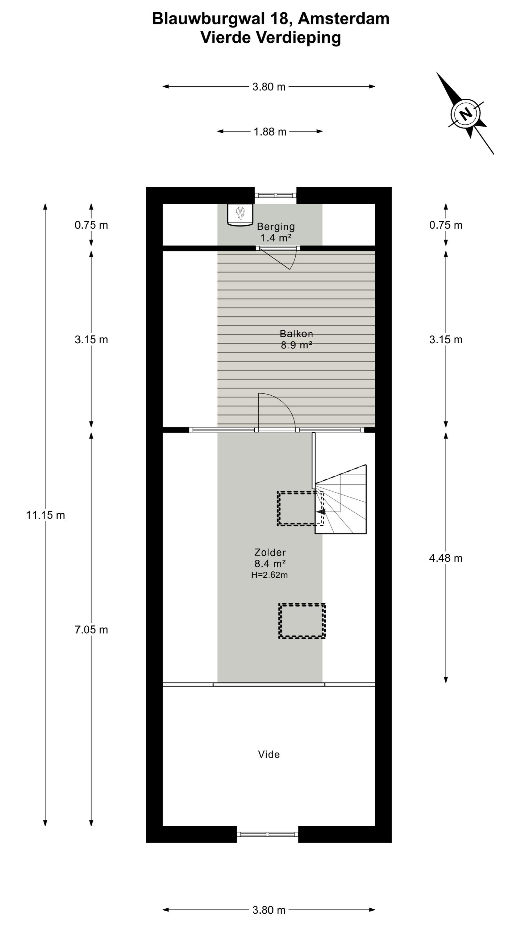
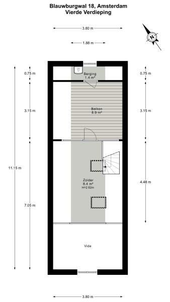
Fourth floor

Located in the roof, this top floor is currently used as a gym. Thanks to the open mezzanine, there’s a visual connection with the master bedroom below, contributing to a feeling of space and cohesion. The sloped rooflines add character, while generous ceiling height and large windows ensure a bright and pleasant ambiance. This is a flexible space, easily converted into an office, creative studio, additional bedroom, or relaxation area. French doors at the rear lead to a quiet and private balcony, a peaceful spot to unwind and enjoy the sun in the heart of the city.

The entire home features stunning oak floors and solid wooden staircases, lending a luxurious and cohesive feel throughout.

Details

• Living space approx. 239 m² (measured according to NEN2580)
• National Monument (Rijksmonument)
• Fully and luxuriously renovated in 2020
• Three bedrooms
• Two bathrooms
• High-end finishes throughout
• Fully equipped with underfloor heating
• Ground-floor commercial space
• Balcony on the fourth floor
• Energy label A+++
• Delivery in consultation

We have gathered this information with the greatest of possible care. However, we will not accept any liability for any incompleteness, inaccuracy or any other matter nor for the consequences of such. All measurements and surfaces stated are indicative. The purchaser has a duty to investigate any matter that may be of importance to him or her. The estate agent is the adviser to the seller with regard to this residence. We advise you to engage an expert (NVM registered) estate agent who will guide you through the purchasing process. Should you have any specific desires with regard to the residence, we advise you to make these known as soon as possible to your purchasing estate agent and have an independent investigation carried out into such matters. If you do not engage an expert, you will be deemed as considering yourself to be sufficiently expert to be- to oversee all matters that could be important. The NVM conditions apply.

Features

Transfer of ownership
price
€ 3.950.000 k.k.
Status
beschikbaar
Acceptance
in overleg
Construction
Kind of house
Grachtenpand
Building type
tussenwoning
Construction period
1761
Energy rating
A_PPP
Roof type
zadeldak
Bedrooms
3
Bathrooms
2
Surface Areas And Volume
Living area
239 m2
Other indoor space
0 m2
Exterior space attached to the building
9 m2
External storage space
2 m2
Volume in cubic meters
939 m3
Plot size
90 m2
facilities
Mechanische ventilatie
Tv kabel
Dakraam
Aan water
In centrum
Vrij uitzicht
Baerz & Co Property Brochure

Brochure

Information / Viewing request

Videos

Video Blauwburgwal 18 H

Photos

Floor Plans