Baerz & Co is a nationwide partnership of carefully selected boutique luxury real estate agents. Together, we form a single network with a shared portfolio. The properties you see on our website come from all affiliated offices within Baerz & Co. As a result, not every property is sold directly by our office, but by a specialized colleague within our network. Have you found a property that appeals to you and would you like more information? We will be happy to put you in touch with the relevant sales agent, so that you receive direct and careful guidance.

POREč
Croatia

Marquiette Schaap profile image
Marquiette Schaap
Real Estate Agent
€1,562,500
Living Area
203m2
Plot Size
1013m2
Bedrooms
4

Description

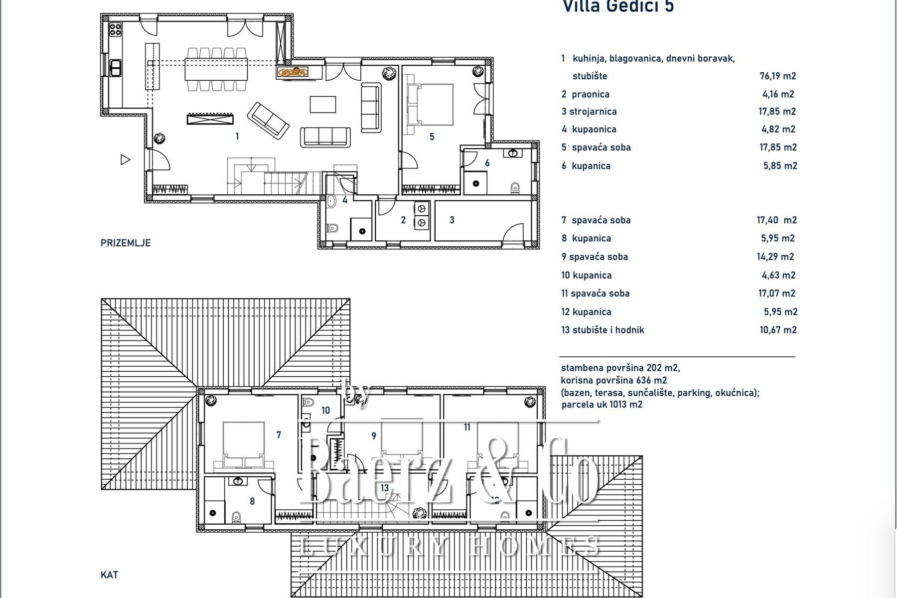
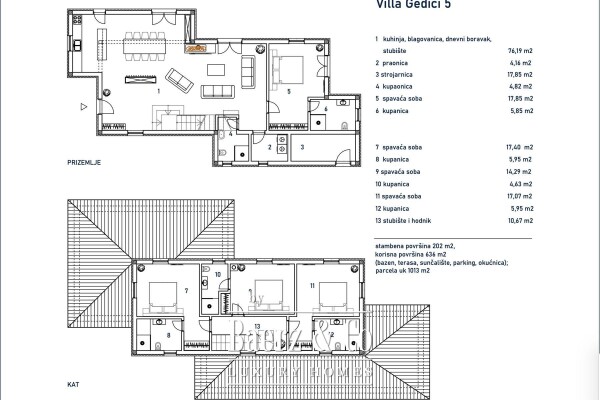
Villa Poreč Mediterranean style anchors itself just beyond the storied coastline of Istria, balancing architectural clarity with Mediterranean warmth. This villa draws together 203m² of interior space and a landscaped plot of 1,013m², expressing equilibrium between light, privacy, and the outdoors.

The ground floor welcomes with an entrance hall, setting a quiet tone before unfolding into open kitchen and dining spaces. The living room, oriented seamlessly towards a terrace, extends the social rhythm outdoors. The sun-drenched terrace features a deck that frames the infinity pool, creating a tactile connection with the garden. A ground floor bedroom with private bath accesses this terrace, while thoughtful amenities include a guest toilet, laundry room, and engine room.

Upstairs, three generous bedrooms each offer their own discreet en suite, providing peaceful separation and comfort. Practicality meets understated innovation with heated pool technology, pre-installed solar capability, and two covered parking spaces.

This villa for sale in Poreč facilitates a Mediterranean pace of life, defined by proportion, light, and a considered approach to contemporary living.

Explore Poreč with Baerz, Your Trusted Personal Property Finder & Advisor

The local luxury landscape demands insight and discretion. Advisors with deep market knowledge are essential for navigating off-market opportunities, achieving favorable terms in competitive bids, and validating property integrity. Trusted representation ensures your interests are protected through legal, logistical, and cultural complexities—essential for preserving value and maximizing return in this nuanced coastal market.

Avoid common pitfalls

International buyers often waste valuable time on duplicate, outdated or misleading online listings, especially since nearly 30% of luxury homes never appear on the public market. Seller’s agents represent the seller’s interests, not the buyer’s. Even requesting information about a property can result in a seller’s agent registering you as their “client” without your consent.
With Baerz Property Finders & Advisors, you avoid all these pitfalls entirely. We work solely on your behalf, offering independent representation, clear guidance and access to all available properties, including off-market opportunities that others never get to see.

Interested in a Personal Property Advisor?

We show you all available homes in one place. Feel free to contact us to learn how we can meet your needs and protect your interests exclusively.

Features

Transfer of ownership
Asking Price
€ 1.562.500
Reference
977398
EUR
Construction
Kind of house
Villa
Bedrooms
4
Bathrooms
4
Surface Areas And Volume
Living Area
203 m2
Plot Size
1013 m2
Baerz & Co Property Brochure

Brochure

Videos

Information / Viewing request

Marquiette Schaap profile image
Marquiette Schaap
Real Estate Agent

Buying a Luxury Property in Poreč

Poreč offers a sophisticated community, rare property opportunities, and a vibrant cultural milieu. Seamless services, elegant living, and international accessibility define its enduring attraction for discerning residents and investors.